Замер и 3D-дизайн

Мы заботимся о вашем удобстве и предлагаем воспользоваться бесплатной услугой выезд менеджера на замеры.
- Менеджер приедет в удобное для Вас время в промежутке с 9-00 до 18-00.
- Произведет замеры офиса.
Размеры Вашего офиса нужны для разработки 3D-дизайна. - Привезет Вам образцы цветов ДСП/МДФ и материалы обивки.
- Поможет Вам выбрать серию мебели по вашему бюджету.
- Подготовит коммерческое предложение по выбранной офисной мебели с ценами и сроками.
Как получить бесплатный 3D план?
- Выслать на почту план помещения, можно нарисованный от руки.
- Если нет плана, то заказать услугу "Выезд замерщика".
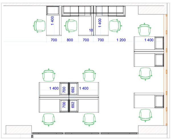
Наш сотрудник к вам приедет, произведёт замер помещения. Покажет вам каталоги и образцы материалов. - Потом для вас подготовим план расстановки мебели в двух вариантах: 2D и 3D.
Благодаря плану Вы сможете визуально представить интерьер офиса и учесть все нюансы расстановки мебели: габариты рабочих мест, расположение шкафов и др.
(044) 333-60-13
(068) 283-59-79
info@kabinet.kiev.ua
3D-дизайн. Визуализация (исполнение 1-2 рабочих дня)

2D и 3D-план офиса (исполнение 1 рабочий день)


